
|
概述 热风循环烘箱是国内首创产品,经我公司精心设计,不断更新,达到国际一流先进水平,该设备是一种箱体式,并可装拆,分为CT型(离心风机)CT-C(轴流风机)的系列产品,它是利用蒸气和电为热源,通过加热器加热,大量热风在箱内进行了热风循环,经过不断新风补充从进风口进入箱体,然后不断从排湿口排出,这样增加了传热效果,使箱内物料水分逐渐减少。我公司生产的烘箱配用低噪音、耐高温轴流风机和自动控温系统,整个循环系统全封闭,使烘箱的热效率从传统的烘房3-7%提高到目前的35-40%,最高热效率可达70%。该设备1990年由国家医药管理局发布了行业标准,同一型号为RXH。 |
|
应用 热风循环烘箱是一种适用面宽的盘架式间歇通用干燥设备,广泛的应用于制药、化工、食品、轻工等工业原料或产品的除湿。例如:原料药、中药饮片、粉剂、冲剂、生药、药品包装瓶、颜料、染料、脱水蔬菜、食品、塑料树脂、电器元件、纸张、皮革、羊毛、盐类,催化剂等物料的干燥。 |
|
特点 大部分热风在箱内循环,热效率高。节约能源。 |
利用强制通风作用,箱内设有可调式分风板,物料干燥均匀,热源可采用蒸汽、热水、电、远红外,选择广泛。 |
整机噪音小,运转平衡,温度自控,安装维持方便。 |
适用范围广,可干燥各种物料,是通用干燥设备。 主要技术参数及有关说明. |
|
加热热源蒸气、电、远红外蒸气两用,供用户选择 使用温度:蒸气加热50~140℃,最高150℃ 用电,远红外温度50~350℃ 备用自控系统和电脑控制系统供用户选择 常用蒸气压力0.02~0.8mpa(0.02~8KG/cm2) 配用电加热按照I型计算15KW,实用5~8KW/h 特殊要求在定货时间时表明 非标烘箱价格面议使用温度大于140℃或小于60℃,要在定货时注明 本厂出厂烘车、烘盘尺寸统一,可以互换烘盘尺寸:640×460×45 |
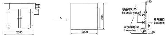
CT-Ⅰ型号烘箱示意图 |
|
CT-Ⅱ型号烘箱示意图 |
|
CT-Ⅲ型号烘箱示意图 |
|
CT-Ⅳ型号烘箱示意图 |
|
CT-C-O型号烘箱示意图 |
|
CT-C-Ⅰ型号烘箱示意图 |
|
CT-C-Ⅱ型号烘箱示意图 |
|
CT-C-Ⅲ型号烘箱示意图 |
|
CT-C-Ⅳ型号烘箱示意图 |
|
定制烘车 |
|
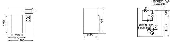
高效高温远红外灭菌烘箱 |
|
使用温度50-400℃ |
采用远红外石英管作发热元件,热效率高,卫生条件好. |
采用层间加热,温差小,灭菌时间短. |
箱内放置定型烘盘(640*460*45)16只 |
非标尺寸可参考用户要求,可制成前后开门. |
|
技术参数 |
型号 |
每次干燥量 (kg) |
配用功率 (kw) |
耗用蒸汽 (kg/h) |
散热面积 (m2) |
风量 (m3/h) |
上下温差 (±) |
配用烘盘(只) |
配套风机数量(只) |
外形尺寸 面宽x深度x高 (mm) |
配套烘车 (辆) |
CT-C-O |
50 |
0.45 |
10 |
10 |
3400 |
±2 |
24 |
1 |
1400x1200x2000 |
1 |
CT-C-I |
100 |
0.9 |
18 |
20 |
3400 |
±2 |
48 |
1 |
2300x1200x2000 |
2 |
CT-C-II |
200 |
0.9 |
36 |
40 |
6800 |
±2 |
96 |
2 |
2300x2200x2000 |
4 |
CT-C-III |
300 |
1.35 |
54 |
80 |
10200 |
±2 |
144 |
3 |
3200x2200x2000 |
6 |
CT-C-IV |
400 |
1.8 |
72 |
100 |
113600 |
±2 |
196 |
4 |
4300x2200x2000 |
8 |
|
|
|
|
|
|
|
|
|
|
|
|
注:材质有碳钢、铝合金、不锈钢,物料最终含水量<1% |
|
可配套各种干燥设备使用,规格品种多样,使用材质有:铝合金、不锈钢、A3钢表面涂锌、钢铝复合、铜制、钢管铝绕片。另外,散热器可单独用于室内及库房的加热除湿,我厂可为用户设计制作。 |
定型烘箱 |
材质:不锈钢、A3网 |
|
轴流风机 |
定型压制烘盘 |
材质:不锈钢、防锈铝合金 |
|
|
|
|
手工井字盘 |
手工井字网盘 |
|
|
一次成型压制盘 |
一次成型打孔盘 |
|