|

|
|
概述
热风循环烘箱是国内首创产品,经我公司精心设计,不断更新,达到国际一流先进水平,该设备是一种箱体式,并可装拆,分为CT型(离心风机)CT-C(轴流风机)的系列产品,它是利用蒸气和电为热源,通过加热器加热,大量热风在箱内进行了热风循环,经过不断新风补充从进风口进入箱体,然后不断从排湿口排出,这样增加了传热效果,使箱内物料水分逐渐减少。我公司生产的烘箱配用低噪音、耐高温轴流风机和自动控温系统,整个循环系统全封闭,使烘箱的热效率从传统的烘房3-7%提高到目前的35-40%,最高热效率可达70%。该设备1990年由国家医药管理局发布了行业标准,同一型号为RXH。
|
| |
|
应用
热风循环烘箱是一种适用面宽的盘架式间歇通用干燥设备,广泛的应用于制药、化工、食品、轻工等工业原料或产品的除湿。例如:原料药、中药饮片、粉剂、冲剂、生药、药品包装瓶、颜料、染料、脱水蔬菜、食品、塑料树脂、电器元件、纸张、皮革、羊毛、盐类,催化剂等物料的干燥。
|
| |
|
特点
大部分热风在箱内循环,热效率高。节约能源。
|
|
利用强制通风作用,箱内设有可调式分风板,物料干燥均匀,热源可采用蒸汽、热水、电、远红外,选择广泛。
|
|
整机噪音小,运转平衡,温度自控,安装维持方便。
|
|
适用范围广,可干燥各种物料,是通用干燥设备。
主要技术参数及有关说明.
|
|
|
|
加热热源蒸气、电、远红外蒸气两用,供用户选择
使用温度:蒸气加热50~140℃,最高150℃
用电,远红外温度50~350℃
备用自控系统和电脑控制系统供用户选择
常用蒸气压力0.02~0.8mpa(0.02~8KG/cm2)
配用电加热按照I型计算15KW,实用5~8KW/h
特殊要求在定货时间时表明
非标烘箱价格面议使用温度大于140℃或小于60℃,要在定货时注明
本厂出厂烘车、烘盘尺寸统一,可以互换烘盘尺寸:640×460×45
|
|
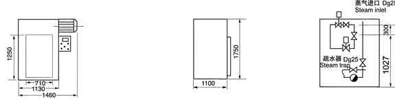
CT-Ⅰ型号烘箱示意图
|
|
|
|
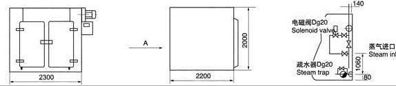
CT-Ⅱ型号烘箱示意图
|
|
|
|
CT-Ⅲ型号烘箱示意图
|
|
|
|
CT-Ⅳ型号烘箱示意图
|
|
|
|
CT-C-O型号烘箱示意图
|
|
|
|
CT-C-Ⅰ型号烘箱示意图
|
|
|
|
CT-C-Ⅱ型号烘箱示意图
|
|
|
|
CT-C-Ⅲ型号烘箱示意图
|
|
|
|
CT-C-Ⅳ型号烘箱示意图
|
|
|
|
定制烘车
|
|
|
|
高效高温远红外灭菌烘箱
|
|
|
|
使用温度50-400℃
|
|
采用远红外石英管作发热元件,热效率高,卫生条件好.
|
|
采用层间加热,温差小,灭菌时间短.
|
|
箱内放置定型烘盘(640*460*45)16只
|
|
非标尺寸可参考用户要求,可制成前后开门.
|
|
|
技术参数
|
|
型号
|
每次干燥量
(kg)
|
配用功率
(kw)
|
耗用蒸汽
(kg/h)
|
散热面积
(m2)
|
风量
(m3/h)
|
上下温差
(±)
|
配用烘盘(只)
|
配套风机数量(只)
|
外形尺寸
面宽x深度x高
(mm)
|
配套烘车
(辆)
|
|
CT-C-O
|
50
|
0.45
|
10
|
10
|
3400
|
±2
|
24
|
1
|
1400x1200x2000
|
1
|
|
CT-C-I
|
100
|
0.9
|
18
|
20
|
3400
|
±2
|
48
|
1
|
2300x1200x2000
|
2
|
|
CT-C-II
|
200
|
0.9
|
36
|
40
|
6800
|
±2
|
96
|
2
|
2300x2200x2000
|
4
|
|
CT-C-III
|
300
|
1.35
|
54
|
80
|
10200
|
±2
|
144
|
3
|
3200x2200x2000
|
6
|
|
CT-C-IV
|
400
|
1.8
|
72
|
100
|
113600
|
±2
|
196
|
4
|
4300x2200x2000
|
8
|
|
|
|
|
|
|
|
|
|
|
|
|
|
|
注:材质有碳钢、铝合金、不锈钢,物料最终含水量<1%
|
|
|
|
可配套各种干燥设备使用,规格品种多样,使用材质有:铝合金、不锈钢、A3钢表面涂锌、钢铝复合、铜制、钢管铝绕片。另外,散热器可单独用于室内及库房的加热除湿,我厂可为用户设计制作。
|
|
定型烘箱
|
|
材质:不锈钢、A3网
|
|
|
|
轴流风机
|
|
定型压制烘盘
|
|
材质:不锈钢、防锈铝合金
|
|
|
|
|
|
|
|
手工井字盘
|
手工井字网盘
|
|
|
|
|
一次成型压制盘
|
一次成型打孔盘
|
|